挂片金属天花系列
OWCN-GP-V系统
OWCN-GP-V SYSTEM
产品说明 PRODUCT DESCRIPTION
V系列单片悬挂型长条金属吊顶属于开放式吊顶,特点是提供了单方向性视觉的掩饰,由于自然下垂形成的空间,因此拆卸方便,对其安装、维修限制较小。灯光、喷淋及空调可以随意安装在吊顶内部,无需对吊顶任何处理。
●Suspended strip metal ceiling of V-baffle System is an opening type.
●It provides visual decoration of single direction.
●Quick installation & easy maintenance.
●Lighting, Sprayer and air-condition can be installed in the ceiling layouts.
V系列条板 V-BAFFLE SYSTEM

V系列板选用附件表 V-BAFFLE SUSPENSION SYSTEM

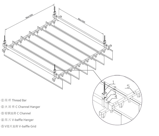
安装结构示意图 INSTALLATION AND ASSEMBLY DETAIL

OWCN-GP-J系统
OWCN-GP-J SYSTEM
产品说明 PRODUCT DESCRIPTION
GP-J系列单片悬挂型长条金属吊顶属于开放式吊顶,特点是提供单方向性的视觉掩饰,由于自然下垂形成的空间,因此拆卸方便,灯光、喷淋及空调可以随意安装在吊顶内部,无需对吊顶任何处理。
●Suspended strip metal ceiling of J-baffle System is an opening type.
●It provides visual decoration of single direction.
●Quick installation & easy maintenance.
●Lighting, Sprayer and air-condition can be installed in the ceiling layouts.
GP-J条板GP-J PLANK

GP-J 条板选用附件表GP-J PLANK SUSPENSION SYSTEM

安装结构示意图 INSTALLATION AND ASSEMBLY DETAIL


